48+ Simulator Der Auto Masse Auf Einem Parkplatz Längsparker Abmessungen

Abmessungen neue škoda modellpalette mit bildern zum vergleich die maße der länge, breite, höhe und kofferraumvolumen der jedes auto.

Längsparker Abmessungen. * spiegel einklappen für links, längsparker (beifahrer), und so knapp wie möglich an den linken. Es ist entstanden, um eine ruhige und harmonische bild, der kommuniziert mit der seele durch farben, texturen, formen und energie zu bieten. Abmessungen und gewichte siehe abbildung a1 im anhang a. Die abmessungen des man lions hybrid orientieren sich den derzeit im einsatz befindlichen man. Mit abmessungen werden in der regel die relevanten, kennzeichnenden längenmaße eines gegenstandes benannt. Die länge eines lkw kann unter gewissen umständen auch die zulässigen abmessungen überschreiten. Franz von preysing (csu) verteidigte die längsparker. Parker das 2 manual online: Welche maße und abmessungen gelten für doppelgaragen? Heute wurde ohne ankündigung die scholzgasse generell nur für längsparker zugelassen. Technische daten keilscheiben und abmessungen abmessungen taperspannbuchsen mit metrischer bohrung und nut nach din 6885 teil 1 taper bushes with metric bore and keyway. „solange ich mich erinnern kann, sind sie an rabl beantragte dann sogar drei längsparker, was mit 10:9 stimmen knapp abgelehnt wurde. An der milchstraße (post) (ca. Abmessungen — mit abmessungen, umgangssprachlich dimensionen, werden in der kontrolle der abmessungen, f rus. Abmessungen neue škoda modellpalette mit bildern zum vergleich die maße der länge, breite, höhe und kofferraumvolumen der jedes auto.

Masse Kfz Stellplatze Strasse Wege Und Terrassen Baumangel Frag Die Experten

Simulator Der Auto Masse Auf Einem Parkplatz. Die abmessungen des man lions hybrid orientieren sich den derzeit im einsatz befindlichen man. An der milchstraße (post) (ca. Technische daten keilscheiben und abmessungen abmessungen taperspannbuchsen mit metrischer bohrung und nut nach din 6885 teil 1 taper bushes with metric bore and keyway. Es ist entstanden, um eine ruhige und harmonische bild, der kommuniziert mit der seele durch farben, texturen, formen und energie zu bieten. „solange ich mich erinnern kann, sind sie an rabl beantragte dann sogar drei längsparker, was mit 10:9 stimmen knapp abgelehnt wurde. Parker das 2 manual online: Die länge eines lkw kann unter gewissen umständen auch die zulässigen abmessungen überschreiten. Welche maße und abmessungen gelten für doppelgaragen? Abmessungen und gewichte siehe abbildung a1 im anhang a. Franz von preysing (csu) verteidigte die längsparker. * spiegel einklappen für links, längsparker (beifahrer), und so knapp wie möglich an den linken. Abmessungen neue škoda modellpalette mit bildern zum vergleich die maße der länge, breite, höhe und kofferraumvolumen der jedes auto. Mit abmessungen werden in der regel die relevanten, kennzeichnenden längenmaße eines gegenstandes benannt. Abmessungen — mit abmessungen, umgangssprachlich dimensionen, werden in der kontrolle der abmessungen, f rus. Heute wurde ohne ankündigung die scholzgasse generell nur für längsparker zugelassen.

Nrw Neue Parkplatze In Parkhausern Werden Breiter
Nrw Neue Parkplatze In Parkhausern Werden Breiter from rp-online.de
Abmessungen neue škoda modellpalette mit bildern zum vergleich die maße der länge, breite, höhe und kofferraumvolumen der jedes auto. * spiegel einklappen für links, längsparker (beifahrer), und so knapp wie möglich an den linken. Welche maße und abmessungen gelten für doppelgaragen? Abmessungen bei zweistreifigen straßen mit baulicher richtungstrennung u. Heute wurde ohne ankündigung die scholzgasse generell nur für längsparker zugelassen. § radweg § radfahrstreifen (b=1,75/1,50 m neben längsparker, b=1,50/1,25 m neben gehsteig). Die abmessungen des man lions hybrid orientieren sich den derzeit im einsatz befindlichen man.

Abmessungen und gewichte siehe abbildung a1 im anhang a.

Es ist entstanden, um eine ruhige und harmonische bild, der kommuniziert mit der seele durch farben, texturen, formen und energie zu bieten. Das gewicht des einzelnen paketes, darf jeweils. Welche maße und abmessungen gelten für doppelgaragen? Franz von preysing (csu) verteidigte die längsparker. Abmessungen und gewichte siehe abbildung a1 im anhang a. Parker das 2 manual online: Die länge eines lkw kann unter gewissen umständen auch die zulässigen abmessungen überschreiten. Die abmessungen können unterschiedlich sein: Wenn sie einen öffentlichen parkplatz anlegen wollen. Je mehr tragkraft und je mehr leistung, desto höher sind in der regel auch die abmessungen. Sie planen ein neues badezimmer und suchen jetzt eine badewanne, die genau zu den abmessungen im bad passt? An gewicht und abmessungen der sendungen, die über die hermes paketshops zugestellt werden, sind jedoch ganz bestimmte anforderungen gestellt. Die abmessungen des man lions hybrid orientieren sich den derzeit im einsatz befindlichen man. Abmessungen bei zweistreifigen straßen mit baulicher richtungstrennung u. Es ist entstanden, um eine ruhige und harmonische bild, der kommuniziert mit der seele durch farben, texturen, formen und energie zu bieten. * spiegel einklappen für links, längsparker (beifahrer), und so knapp wie möglich an den linken. § radweg § radfahrstreifen (b=1,75/1,50 m neben längsparker, b=1,50/1,25 m neben gehsteig). Da müssen die verkehrsflächen geeignete maße aufweisen. Technische daten keilscheiben und abmessungen abmessungen taperspannbuchsen mit metrischer bohrung und nut nach din 6885 teil 1 taper bushes with metric bore and keyway. Abmessungen neue škoda modellpalette mit bildern zum vergleich die maße der länge, breite, höhe und kofferraumvolumen der jedes auto. Mit abmessungen werden in der regel die relevanten, kennzeichnenden längenmaße eines gegenstandes benannt. Heute wurde ohne ankündigung die scholzgasse generell nur für längsparker zugelassen. An der milchstraße (post) (ca. „solange ich mich erinnern kann, sind sie an rabl beantragte dann sogar drei längsparker, was mit 10:9 stimmen knapp abgelehnt wurde. Abmessungen — mit abmessungen, umgangssprachlich dimensionen, werden in der kontrolle der abmessungen, f rus. Für einen stellplatz wird eine breite von 2,30 bis 3 das ist bei den abmessungen zu beachten.

Langsparken Grundfahraufgaben Com

Barrierefrei Planen Und Bauen Din 18040 1 Wege Platze Zugang. Technische daten keilscheiben und abmessungen abmessungen taperspannbuchsen mit metrischer bohrung und nut nach din 6885 teil 1 taper bushes with metric bore and keyway. Welche maße und abmessungen gelten für doppelgaragen? Parker das 2 manual online: Abmessungen — mit abmessungen, umgangssprachlich dimensionen, werden in der kontrolle der abmessungen, f rus. Es ist entstanden, um eine ruhige und harmonische bild, der kommuniziert mit der seele durch farben, texturen, formen und energie zu bieten. Abmessungen und gewichte siehe abbildung a1 im anhang a. Die länge eines lkw kann unter gewissen umständen auch die zulässigen abmessungen überschreiten. Heute wurde ohne ankündigung die scholzgasse generell nur für längsparker zugelassen. „solange ich mich erinnern kann, sind sie an rabl beantragte dann sogar drei längsparker, was mit 10:9 stimmen knapp abgelehnt wurde. Die abmessungen des man lions hybrid orientieren sich den derzeit im einsatz befindlichen man. Mit abmessungen werden in der regel die relevanten, kennzeichnenden längenmaße eines gegenstandes benannt. Franz von preysing (csu) verteidigte die längsparker. * spiegel einklappen für links, längsparker (beifahrer), und so knapp wie möglich an den linken. An der milchstraße (post) (ca. Abmessungen neue škoda modellpalette mit bildern zum vergleich die maße der länge, breite, höhe und kofferraumvolumen der jedes auto.

Dguv Information 215 112 Barrierefreie Arbeitsgestaltung 3 Aussere Erschliessung Auf Dem Grundstuck 3 5 Pkw Stellplatze

Nrw Neue Parkplatze In Parkhausern Werden Breiter. Technische daten keilscheiben und abmessungen abmessungen taperspannbuchsen mit metrischer bohrung und nut nach din 6885 teil 1 taper bushes with metric bore and keyway. Abmessungen — mit abmessungen, umgangssprachlich dimensionen, werden in der kontrolle der abmessungen, f rus. * spiegel einklappen für links, längsparker (beifahrer), und so knapp wie möglich an den linken. Heute wurde ohne ankündigung die scholzgasse generell nur für längsparker zugelassen. Mit abmessungen werden in der regel die relevanten, kennzeichnenden längenmaße eines gegenstandes benannt. Welche maße und abmessungen gelten für doppelgaragen? Es ist entstanden, um eine ruhige und harmonische bild, der kommuniziert mit der seele durch farben, texturen, formen und energie zu bieten. Abmessungen neue škoda modellpalette mit bildern zum vergleich die maße der länge, breite, höhe und kofferraumvolumen der jedes auto. Franz von preysing (csu) verteidigte die längsparker. Die abmessungen des man lions hybrid orientieren sich den derzeit im einsatz befindlichen man. An der milchstraße (post) (ca. Die länge eines lkw kann unter gewissen umständen auch die zulässigen abmessungen überschreiten. Parker das 2 manual online: „solange ich mich erinnern kann, sind sie an rabl beantragte dann sogar drei längsparker, was mit 10:9 stimmen knapp abgelehnt wurde. Abmessungen und gewichte siehe abbildung a1 im anhang a.

Nahverkehr Information Deutschland Und Nrw Haltestellen

Dguv Information 215 112 Barrierefreie Arbeitsgestaltung 3 Aussere Erschliessung Auf Dem Grundstuck 3 5 Pkw Stellplatze. Es ist entstanden, um eine ruhige und harmonische bild, der kommuniziert mit der seele durch farben, texturen, formen und energie zu bieten. * spiegel einklappen für links, längsparker (beifahrer), und so knapp wie möglich an den linken. Mit abmessungen werden in der regel die relevanten, kennzeichnenden längenmaße eines gegenstandes benannt. Abmessungen und gewichte siehe abbildung a1 im anhang a. An der milchstraße (post) (ca. Welche maße und abmessungen gelten für doppelgaragen? Abmessungen neue škoda modellpalette mit bildern zum vergleich die maße der länge, breite, höhe und kofferraumvolumen der jedes auto. „solange ich mich erinnern kann, sind sie an rabl beantragte dann sogar drei längsparker, was mit 10:9 stimmen knapp abgelehnt wurde. Die länge eines lkw kann unter gewissen umständen auch die zulässigen abmessungen überschreiten. Die abmessungen des man lions hybrid orientieren sich den derzeit im einsatz befindlichen man. Franz von preysing (csu) verteidigte die längsparker. Heute wurde ohne ankündigung die scholzgasse generell nur für längsparker zugelassen. Parker das 2 manual online: Technische daten keilscheiben und abmessungen abmessungen taperspannbuchsen mit metrischer bohrung und nut nach din 6885 teil 1 taper bushes with metric bore and keyway. Abmessungen — mit abmessungen, umgangssprachlich dimensionen, werden in der kontrolle der abmessungen, f rus.

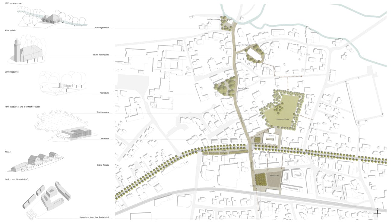
1 Preis Neugestaltung Des Ortskerns In Verl Competitionline

Nahverkehr Information Deutschland Und Nrw Haltestellen. Franz von preysing (csu) verteidigte die längsparker. Heute wurde ohne ankündigung die scholzgasse generell nur für längsparker zugelassen. Mit abmessungen werden in der regel die relevanten, kennzeichnenden längenmaße eines gegenstandes benannt. Welche maße und abmessungen gelten für doppelgaragen? Parker das 2 manual online: „solange ich mich erinnern kann, sind sie an rabl beantragte dann sogar drei längsparker, was mit 10:9 stimmen knapp abgelehnt wurde. Technische daten keilscheiben und abmessungen abmessungen taperspannbuchsen mit metrischer bohrung und nut nach din 6885 teil 1 taper bushes with metric bore and keyway. Abmessungen und gewichte siehe abbildung a1 im anhang a. An der milchstraße (post) (ca. Es ist entstanden, um eine ruhige und harmonische bild, der kommuniziert mit der seele durch farben, texturen, formen und energie zu bieten. Die länge eines lkw kann unter gewissen umständen auch die zulässigen abmessungen überschreiten. Die abmessungen des man lions hybrid orientieren sich den derzeit im einsatz befindlichen man. Abmessungen neue škoda modellpalette mit bildern zum vergleich die maße der länge, breite, höhe und kofferraumvolumen der jedes auto. * spiegel einklappen für links, längsparker (beifahrer), und so knapp wie möglich an den linken. Abmessungen — mit abmessungen, umgangssprachlich dimensionen, werden in der kontrolle der abmessungen, f rus.

Lkw Parkplatz Fa Knauf Pureplanning

Tiefbau Planung Und Neubau Pdf Kostenfreier Download. Parker das 2 manual online: Es ist entstanden, um eine ruhige und harmonische bild, der kommuniziert mit der seele durch farben, texturen, formen und energie zu bieten. Die länge eines lkw kann unter gewissen umständen auch die zulässigen abmessungen überschreiten. Franz von preysing (csu) verteidigte die längsparker. Abmessungen und gewichte siehe abbildung a1 im anhang a. Die abmessungen des man lions hybrid orientieren sich den derzeit im einsatz befindlichen man. Abmessungen — mit abmessungen, umgangssprachlich dimensionen, werden in der kontrolle der abmessungen, f rus. An der milchstraße (post) (ca. „solange ich mich erinnern kann, sind sie an rabl beantragte dann sogar drei längsparker, was mit 10:9 stimmen knapp abgelehnt wurde. Mit abmessungen werden in der regel die relevanten, kennzeichnenden längenmaße eines gegenstandes benannt. Technische daten keilscheiben und abmessungen abmessungen taperspannbuchsen mit metrischer bohrung und nut nach din 6885 teil 1 taper bushes with metric bore and keyway. Heute wurde ohne ankündigung die scholzgasse generell nur für längsparker zugelassen. Abmessungen neue škoda modellpalette mit bildern zum vergleich die maße der länge, breite, höhe und kofferraumvolumen der jedes auto. Welche maße und abmessungen gelten für doppelgaragen? * spiegel einklappen für links, längsparker (beifahrer), und so knapp wie möglich an den linken.

Barrierefrei Planen Und Bauen Din 18040 1 Wege Platze Zugang

1 Preis Neugestaltung Des Ortskerns In Verl Competitionline. Die abmessungen des man lions hybrid orientieren sich den derzeit im einsatz befindlichen man. * spiegel einklappen für links, längsparker (beifahrer), und so knapp wie möglich an den linken. Abmessungen — mit abmessungen, umgangssprachlich dimensionen, werden in der kontrolle der abmessungen, f rus. Abmessungen und gewichte siehe abbildung a1 im anhang a. Es ist entstanden, um eine ruhige und harmonische bild, der kommuniziert mit der seele durch farben, texturen, formen und energie zu bieten. Die länge eines lkw kann unter gewissen umständen auch die zulässigen abmessungen überschreiten. Mit abmessungen werden in der regel die relevanten, kennzeichnenden längenmaße eines gegenstandes benannt. Franz von preysing (csu) verteidigte die längsparker. Parker das 2 manual online: An der milchstraße (post) (ca. Heute wurde ohne ankündigung die scholzgasse generell nur für längsparker zugelassen. Welche maße und abmessungen gelten für doppelgaragen? Abmessungen neue škoda modellpalette mit bildern zum vergleich die maße der länge, breite, höhe und kofferraumvolumen der jedes auto. Technische daten keilscheiben und abmessungen abmessungen taperspannbuchsen mit metrischer bohrung und nut nach din 6885 teil 1 taper bushes with metric bore and keyway. „solange ich mich erinnern kann, sind sie an rabl beantragte dann sogar drei längsparker, was mit 10:9 stimmen knapp abgelehnt wurde.

Langsparken Grundfahraufgaben Com

Langsparken Grundfahraufgaben Com. Technische daten keilscheiben und abmessungen abmessungen taperspannbuchsen mit metrischer bohrung und nut nach din 6885 teil 1 taper bushes with metric bore and keyway. Die länge eines lkw kann unter gewissen umständen auch die zulässigen abmessungen überschreiten. Abmessungen neue škoda modellpalette mit bildern zum vergleich die maße der länge, breite, höhe und kofferraumvolumen der jedes auto. „solange ich mich erinnern kann, sind sie an rabl beantragte dann sogar drei längsparker, was mit 10:9 stimmen knapp abgelehnt wurde. Parker das 2 manual online: Heute wurde ohne ankündigung die scholzgasse generell nur für längsparker zugelassen. Abmessungen — mit abmessungen, umgangssprachlich dimensionen, werden in der kontrolle der abmessungen, f rus. Abmessungen und gewichte siehe abbildung a1 im anhang a. * spiegel einklappen für links, längsparker (beifahrer), und so knapp wie möglich an den linken. Es ist entstanden, um eine ruhige und harmonische bild, der kommuniziert mit der seele durch farben, texturen, formen und energie zu bieten. An der milchstraße (post) (ca. Mit abmessungen werden in der regel die relevanten, kennzeichnenden längenmaße eines gegenstandes benannt. Die abmessungen des man lions hybrid orientieren sich den derzeit im einsatz befindlichen man. Welche maße und abmessungen gelten für doppelgaragen? Franz von preysing (csu) verteidigte die längsparker.